La Rochelle

2024

Expansion and reconfiguration of a SMAC and creation of a City of Contemporary Music

Client: La Rochelle Urban Community
Cost: €8,400,000 excluding tax
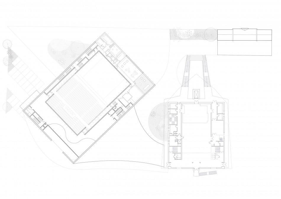
Surface area: 2,695 m² gross floor area + 50 m² outdoor space


Our proposal is based on a simple concept: to offer SMAC audiences a generous meeting space between the two volumes of La Sirène. To achieve this, we have chosen to remodel the entrance plaza to form a large ramp that extends from the existing level of the former “PAF” building - the new reception/ticket office - and transforms into an esplanade that takes spectators to the ground floor level of the existing Sirène (balcony level), where the public entrance to the Grande Salle is located. The positioning of the Grande Salle, which is offset from the Sirène, allows it to open onto this forecourt. More than just a thoroughfare, it becomes a real living and meeting space, extending towards the horizon of the port and offering a large terrace with a view of the contemporary music fresco.

We envision this open space for reasons of porosity, landscape, and a desire to create a harmonious relationship with the current context, but also out of a concern for frugality and simplicity of use. As a tribute to the existing structure, the space is covered by a sail that unfurls between the two volumes of La Sirène and allows users to gather after concerts on busy evenings. In addition to paying homage to the existing structure, the sail provides an effective and economical shelter for all spectators on busy evenings before they reach their concert hall. This opening becomes “Le Pertuis” for us, the buffer space between the halls, where spectators gather to enjoy the show outside the walls, concerts in the open-air theater, surrounded by food stands and a variety of spontaneous or scheduled entertainment. Le Pertuis comes to life and gives meaning to the in-between space. Like the agora of Greek cities, it becomes the heart of the project.

Designed as a showcase, we sketched out the project as a simple, Cartesian volume, enveloping and protecting the Great Hall. The shape of the building does not clash with the landscape but resonates with it. The extension fades into the background to allow the port, with all its complexities, and the iconic profile of the existing building to dominate. The “box” around the Great Hall, in order to meet the program's requirements in terms of speed of implementation, obvious acoustics, and durability - given the maritime context - would be clad in concrete on the outside, with wooden-framed facades and lime/hemp sprayed concrete infill, which will lighten the facade structure of the extension.