Thionville

2024

Multipurpose Sports Centre in Thionville

Contracting owner: Thionville town council
Cost: €11,720,000 excl. VAT
Floor area: 4,554 m²


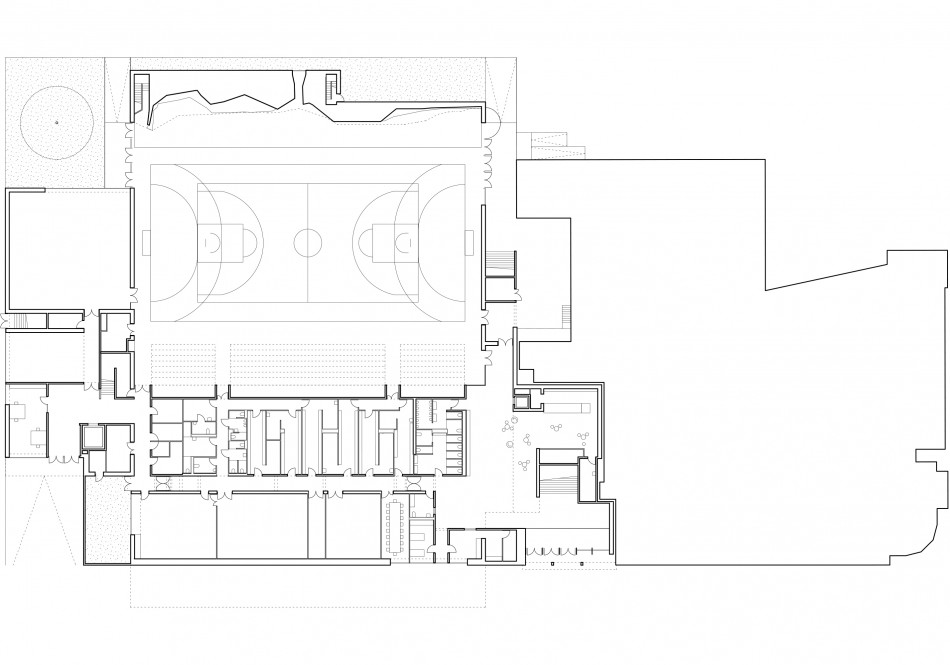
Our task here was to create a contemporary space within an existing one that dates back to 1960. The town’s municipal gymnasium and theatre formed a historical whole, but the site’s sports facilities needed to be modernised to host major competitions and cultural events.

A desire for architectural coherence and respect for the existing built heritage guided our approach. So, we preserved the stone wall that gave visual structure to the whole site and that now serves as a link between periods of time. We also kept the original entrance portico, which remains the landmark it always has been for the town’s inhabitants.

The forms of the gymnasium’s facade were borrowed from those of the existing theatre. With its tall, vertical openings and its solid sections alternating with glazed portions, this sports centre – called “le SPOT” (for “le Site Polyvalent Omnisport de Thionville”) – extends the theatre as if the two buildings were created at the same time and as if the new edifice were honouring the site’s heritage while placing it firmly in modernity.

The silver section of the multipurpose hall overhangs the left side of the stone plinth course. It seems to float as if suspended in the general layout. This form is a response to that of the theatre. Its colour creates a paradoxical impression of lightness, which its 46-metre-long section of glazing underlines. On the corner where the street Rue Général Walton Walker joins the road Boulevard du XXe Corps, a dance room offers the town its graceful shows through generous glazing. And on the other side, where the street Rue Pasteur runs past the building, a section is set back, which made it possible to preserve a majestic Lebanese cedar that shades the rhythmic gymnastics room.

Inside, structural choices that conceal load-bearing parts allow your gaze to discover the indoor spaces uninterruptedly. Indeed, you are struck by the spaciousness and brightness that characterise these indoor spaces. For example, the reception hall leads both to a monumental staircase of architectonic concrete – which invites you to walk up to the multipurpose hall and the top of the spectator stands – and to the door to the ground-floor gymnasium, as well as the hallway that leads to the dance room. The generous view prompts you to contemplate the beauty of the space. An ochre tone sets the upper parts ablaze in colour and natural light reveals the casing of its concrete.

Though the historical entrance hallway remains in place, the new reception hall has a distinct characteristic: it extends between the ground-floor hallway and the vast first-floor balcony. This double-height atrium makes the reception hall a fully fledged space. The flow of movements that it evokes allows for events to unfold simultaneously in both main halls and invites different groups of the general public to cross paths.

A particularity of the rhythmic gymnastics room – with its 12-metre ceiling height – is that it is a veritable cube. Indeed, it forms a showcase for ribbon throwers. For this reason, the air flows here are weak.

The centre’s flagship installation is a climbing wall, which is 42 metres wide and 15 metres high. It stands in the ground-floor gymnasium and is designed as an architectural feature in its own right. This climbing wall is sculpted like the uneven surface of a real mountain cliff. It also includes lanes for international competitions. A surprising triangular opening pierces the bottom of it to bring the town’s natural light outside into the gymnasium. Standing against the opposite wall, there is a 750-seater terraced spectator stand, which rises up to the first-floor multipurpose room. Three big screens with a control unit broadcast sports events and shows in real time in the two halls. The white upper section of the gymnasium ensures a homogenous spread of natural light, which is well suited to sports competitions.

The two large sports halls were designed to lend themselves to a range of multiple activities to reflect the diversity of the centre’s programmes. Indeed, we encouraged this by not making the entrances to these spaces too specific: we wanted to develop a joyful kind of porosity.

The sideways cross-section illustrates this relation well: the red multipurpose hall on the first floor – overhanging upon the historical stone wall – extends the blue gymnasium on the ground floor and meets it at the top of its spectator stand. Only a break in colour and a glazed section, which allows you to move from one space to the other, serve as a symbolic boundary.

On the other side of the multipurpose hall, a second glazed wall looks out at the town and the organic silhouette of the Puzzle multimedia library. The upper sections of this hall bear a majestic tone of red that gives a certain tint to the hall in accordance with the lighting chosen. The bold use of this colour promises sporting experiences rich in emotion and invites more festive uses of the hall.

When brought together, the two halls become a 2,800m2 space suited to large-scale cultural, professional and sports events. In such situations, the multipurpose hall can become the gymnasium’s upper lobby, just as the gymnasium can become an annexe for an event underway up on the first floor. This reversibility in the building was designed to suit the wealth of events in the centre’s programme.

The visual extensions of the cross-section give scope to this 46-metre-long building characterised by glazing. For this reason, the whole centre lends itself to multiple scenographic possibilities. It gives priority to users’ visual and spatial comfort.