Besançon

2024

Franche-Comté Advanced School of Engineering (ISIFC)

Contracting owner: Grand Besançon Métropole
Cost: €5,420,000 excl. VAT
Floor area: 2,105m2 (total floor area)


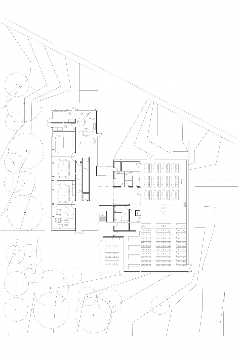
The engineering school lies on the Bouloie-Temis campus in Besançon, France, in parallel to the road that runs up its biggest slope. The positioning of the spaces built creates the major advantage of being absorbed by a small listed wood, which forges a close relationship between the rooms and the trees, which are very near to the elevations.

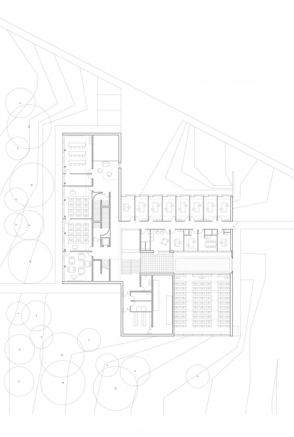
So, in a way, the building only has one face – that which looks out at the street, which is the main road running through the campus. The construction was divided into two parts to leave the possibility of a future extension being built. There is one section that contains the specific-purpose parts like the large lecture and conference hall with a big classroom and the administrative hub. And there is a second section that houses the ordinary classrooms.

The second section was placed on pillars for flexible use of the spaces and in order to leave the possibility of an extension being built later. The classrooms offer a sweeping view of the woods and the tall trees provide them with coolness and protection from the sun.

The idea of a gradual slide made it possible for us to create a transitional space that produced inner spaciousness. The collective spaces were designed to make interactions easier and to also make it easier to organise exhibitions, which take place regularly here, given the teaching approach of this engineering school.

The spaces are cavernous and bathed in an abundance of natural light. A raw, rustic atmosphere emerges in them. The student common room with its double height in a vivid orange tone adds a contrast that showcases both the soft plainness of the concrete and the sense of surprise of this colourful burst.

The large lecture and conference hall connects to an examinations room via a sliding partition. This sliding partition was not requested in the programme, but it makes it possible to create a vast space that is ideally suited to the international congresses that take place here. Natural light fills the space and the cross-section shows the advantage of bringing these two spaces together. So we have here a small building that is, in fact, very big. It offers space that can expand in accordance with uses.

The solutions put in place offer reversibility and adjustability. This adjustability serves a teaching approach that is constantly changing. The question that we asked ourselves in this project was about permanence.